Lejlighed
2. TH – Værelse 5
Placering
2. TH – Værelse 5
Antal m2
10
Leje
3.200,00 kr.
Leje inkl. forbrug
3.850,00 kr.
Depositum
11.550,00 kr.
Fællesareal m2
40
Kommentar
Værelse mod gaden + altan
Gulv
Trægulv
1.TV - Værelse 1
1.TV - Værelse 2
1.TV - Værelse 3
1.TV - Værelse 4
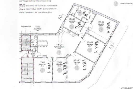
1. TH - Værelse 1
1. TH - Værelse 2
1. TH - Værelse 3
1. TH - Værelse 4
1. TH - Værelse 5
1. TH - Værelse 6
2. TV - Værelse 1
2. TV - Værelse 2
2. TV - Værelse 3
2. TV - Værelse 4
2. Th - Værelse 1A
2. TH - Værelse 1B
2. Th - Værelse 2
2. Th - Værelse 3
2. Th - Værelse 4
2. TH - Værelse 5
Frederiksgade 17
5700 Svendborg











